北岸长风 精装修带家具 现房出租 可定制隔断

分享
5.20 万元/月
  • 单价:4.5元/㎡/天
  • 物业费:28.0元/㎡/月
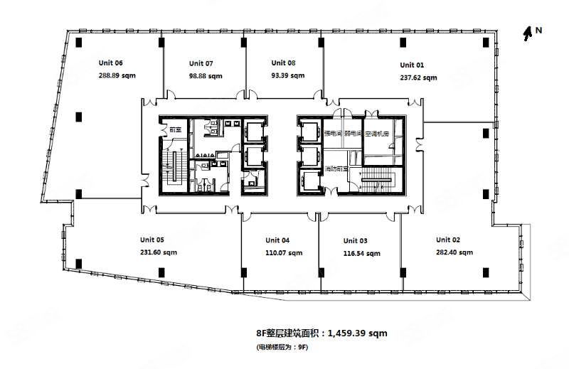
380㎡
建筑面积
50
容纳工位
带装修家具
装修
  • 普 陀-长风商务区
  • 13号线-大渡河路、2号线-威宁路、15号线-长风公园
  • 北岸长风

房源专属顾问为您服务

陈水天Felix

18616199007
预约看房

公共交通

Public transit

北岸长风

普 陀长风商务区大渡河路168弄