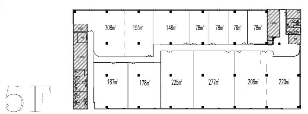
大宁中心广场三期江空间,精装修配家具208平,直租

分享
2.66 万元/月
  • 单价:4.2元/㎡/天
  • 物业费:26.0元/㎡/月
208㎡
建筑面积
20-30人
容纳工位
带装修家具
装修
  • 静 安-大宁
  • 1号线-上海马戏城
  • 宁汇广场•大宁中心广场三期

房源专属顾问为您服务

陈水天Felix

18616199007
预约看房

公共交通

Public transit

宁汇广场•大宁中心广场三期

静 安大宁灵石路718号