400-8090-77579.97 万元/月
- 单价:11.0元/㎡/天
- 物业费:42.0元/㎡/月
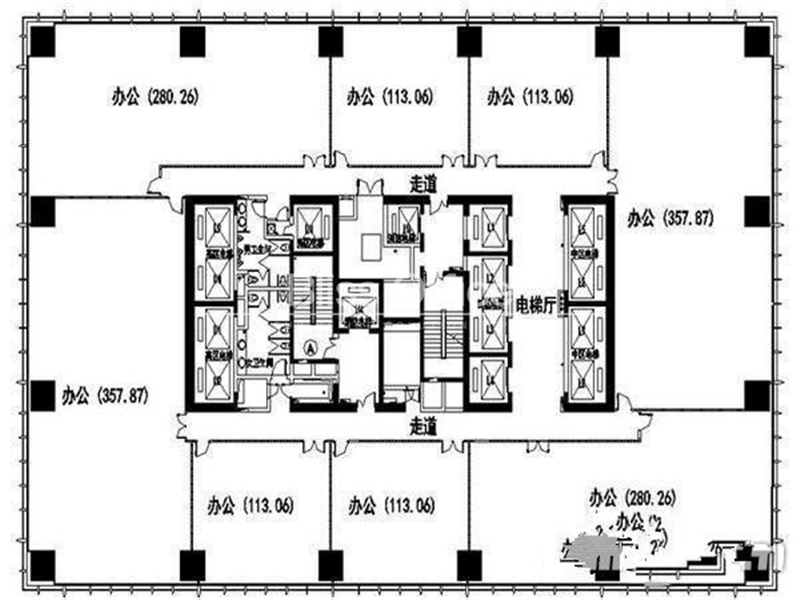
2390㎡
建筑面积
250-300人
容纳工位
标准交房
装修
浦 东-陆家嘴
2号线-陆家嘴、14号线-陆家嘴
汇亚大厦
基本信息
- 使用率约 76%
- 可否注册 是
- 免租时间 3-4个月
- 最早可租 随时
- 最短租期 3年
- 装修备注 金属吊顶,乳胶漆白墙,架空地板,可以自由设计装修 ,新楼交付
- 看房时间 随时
汇亚大厦
- 总楼层 37层
- 单层面积 2390平
- 竣工年月 2005年
- 物业公司 世邦魏理仕
- 空调类型 VAV中央空调系统