400-8090-775
首 页
优选好房
传统办公
共享办公
委托&投放
Bliss Office
>
优选好房
>
中融大厦
中融国际大厦精装修带家具带上下水出租
分享
5.69
万元/月
单价:5.0元/㎡/天
物业费:25.0元/㎡/月
374㎡
建筑面积
40个
容纳工位
带装修家具
装修
浦 东-八佰伴
2号线-浦东南路、9号线-商城路
中融大厦
房源专属顾问为您服务
陈水天
Felix
18616199007
预约看房
基本信息
使用率约
70%
可否注册
是
免租时间
1个月
最早可租
随时
最短租期
1年
装修备注
业主提供全新装修家具,最重要的是部分房源带上下水
看房时间
随时
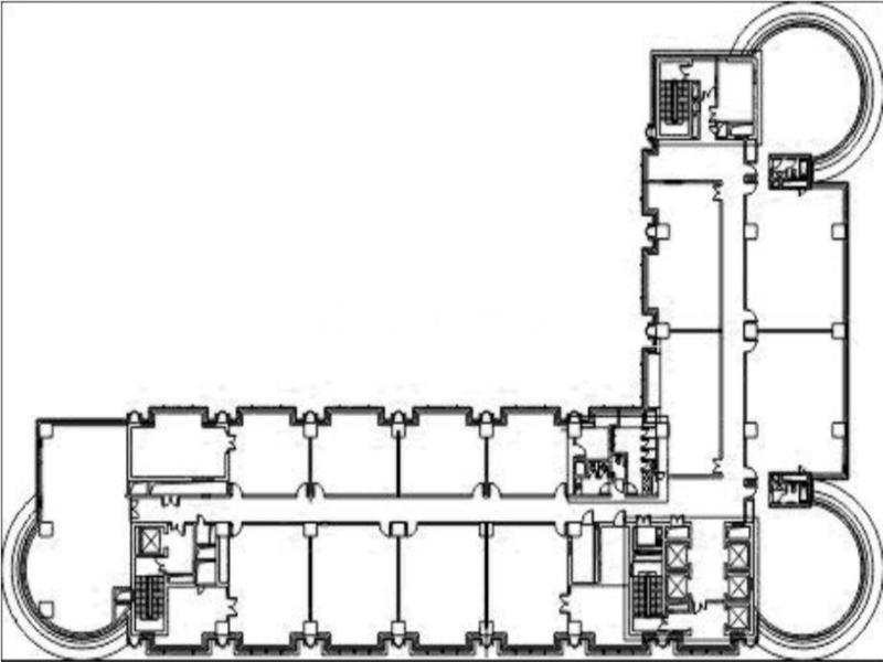
户型格局、图片
所属楼盘
查看楼盘详情 >
中融大厦
总楼层
18层
单层面积
2121平方米
竣工年月
1998年
物业公司
中融国际商城
空调类型
VAV中央空调系统
热门房源
越界永嘉庭110平房源出租 衡山路地铁站 园区环境好 适合各大创意型公司
110㎡ / 10-12
2.68
万元/月
徐家汇国际大厦223平精装修带家具 看徐家汇公园 近地铁站
223㎡ / 20人
4.41
万元/月
华盛大厦 高区豪华装修 315平 南京东路地铁站直达
315㎡ / 30人
6.52
万元/月
bfc外滩金融中心340平精装带家具,一线江景
340㎡ / 30-50人
10.34
万元/月
会德丰广场高区250方,正对电梯厅,9成新装修
250㎡ / 20-30人
10.65
万元/月
恒隆广场高区277方豪华装修,预约看房
277㎡ / 20-40人
12.64
万元/月
K11,142.18方,LOGO电子屏,精装老板间+2独立隔断
142㎡ / 10-20人
4.75
万元/月
龙湖天街,精装带家具127.6平,拎包入住
128㎡ / 10-15人
1.75
万元/月
SOHO东海广场16人办公室带经理室,桌椅可按需求提供,定制办公
112㎡ / 15-20人
2.73
万元/月
公共交通
Public transit
中融大厦
浦 东八佰伴浦东南路1088号
周边楼盘推荐
上海中心大厦
环球金融中心
国金中心大厦
金茂大厦