长宁其他
长 宁-中山西路999号
10号线-宋园路、3号线-虹桥路、4号线-虹桥路
楼盘专属顾问为您服务


In Tenant Type
Building photos
Building introduction
写字楼
2500方
21 层
68%
2006年
中远物业
25元/平米/月
净高2.7米
VAV中央空调系统
客梯6部、货梯2部、自动扶梯2部
1000元/月
是
华闻国际大厦地处虹桥开发区,南接古北国际豪宅社区,北靠天山路商业区,东临徐家汇商业中心,是距离国际机场 最近的核心商务区,商务配套成熟完善,周边高档办公楼、五星级酒店、大型购物中心林立,有十多家领事馆、近千家涉外机构在此入驻。
华闻国际大厦总体占地面积约为7900平方米左右,总建筑面积地上约5万平方米,地下约5024平方米,容积率5.29%,整体建筑呈塔式依次由20、17、14层错落展开从而形成南高北低走势。在建筑风格上采用了具有强烈新古典主义特征的ART DECO风格,强化了竖向线条的力度,增加了建筑的俊秀挺拔。
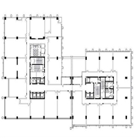
华闻国际大厦户型图如下:

层高:净高2.7米
层数:21层
物业:上海中远物业管理发展有限公司
物业费:25元/平米•月
车位约:200个
车位月租金:1300元/位•月
空调:VAV中央空调系统
空调费物业管理费包含空调费
空调开放时长:周一至周五:8:00至18:00
电梯客梯:6部,货梯2部
网络:电信、联通、移动、铁通
入驻企业有:乔山健康科技、鄂尔多斯贸易等
Public transit
长 宁长宁其他中山西路999号

How To Commissin Office SH
