鸿祥大厦项目简介
鸿祥大厦位于黄浦区黄河路 21-43 号,大光明电影院以东,与上海市中心地标建筑——国际饭店为邻,可以鸟瞰人民公园全景。周边交通四通八达,地铁一号、二号、八号线,隔南京路相望,出则繁华、入则宁静,一步之遥极为方便。 大厦业主方为国有控股——中国餐饮百强杏花楼集团,聘请五大行高力国际作为深度物业管理顾问。 鸿祥大厦可直面人民广场绿地景观,使人心旷神怡。大厦内部环境典雅精致,更有员工食堂、茶水间等人性化配置,提供了舒适怡人的办公空间。
鸿祥大厦总建筑面积 20261 平方米,其中可出租的办公楼面积为 12359 平方米,共有 11 个楼面(6F-16F);另有商用面积 4342 平方米,由杏花楼餐饮、功德林素食,宁波银行、
罗森便利店及瑞幸咖啡入驻经营,现有车库面积 1725 平方米,停车位 76 个。
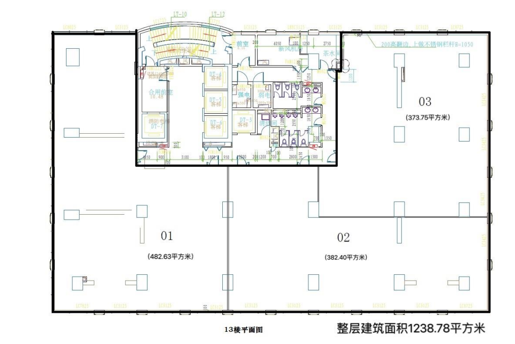
(主楼)十三楼
平面图

空置面积:1238.78 ㎡,
面积划分:1301 室:482.63 ㎡,1302 室:382.40 ㎡,1303
室:373.75 ㎡
租赁单价:6.5 元/㎡*天
物业费:32 元/㎡/月(办公)
免租期:合同内三个月
支付方式:押三付一
房屋交付状态:标准交付或现状交付
停车位:整层租赁可获得 2 个免费停车位,可另外增加 3-4
个收费停车位,价格根据车型大小另行商议。(主楼)十七楼(屋顶层)
空置面积:655.58 ㎡,
租赁单价:6.5 元/㎡*天
物业费:32 元/㎡/月(办公)
免租期:合同内三个月
支付方式:押三付一
房屋交付状态:标准交付或现状交付鸿祥大厦配套设施:
●停车场(地下、地面、升降塔库共计停车位 76 个)
●B1 楼员工食堂(不对外经营,仅对大厦内租户及合作商户
开放)
●18 楼鸿祥咖啡吧(不对外经营,仅对大厦内租户商务会谈
开放,有偿供应咖啡、茶类饮品)
●19 楼鸿祥餐饮包间(按位收费,根据不同人均收费价位,
提供宴请服务)
租赁电话:18616199007





行业资讯

楼盘解析
上一篇
沪公网安备31010702008221